
Преимущества внутренних чердачных лестниц
Расположение чердачной лестницы внутри помещения имеет несколько неоспоримых преимуществ. Вот наиболее значимые из них:
- Конструкция практически незаметна в помещении.
- Лестничный марш не занимает драгоценное пространство.
- Люк можно креативно оформить как декоративный элемент (или же замаскировать его).
- Очень просто попасть на верхний уровень здания.


- Складная. Представляет собой максимально простую конструкцию из 3-4 элементов, которые скреплены между собой. Выполняются из дерева или металла. Конструкцию очень просто сложить/разложить, а в собранном виде она легко помещается под крышкой чердачного люка.


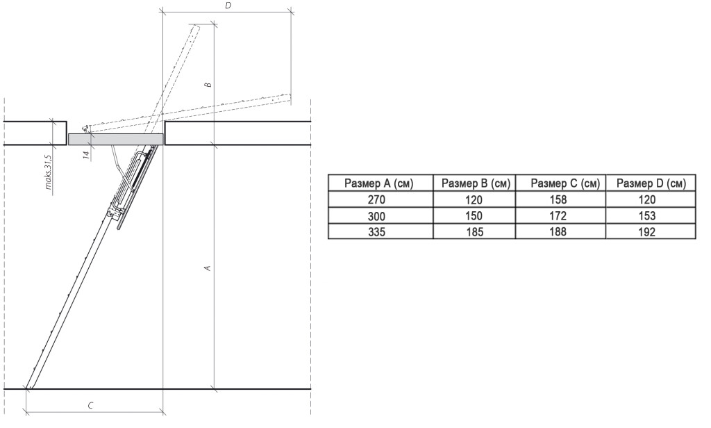
- Раздвижная. В основном состоят из 2 частей, которые крепятся на люк. Имеет достаточно много функциональных решений. Главная особенность, при изготовлении и установке нужно точно рассчитать размеры проема и высоту потолка.


- Ножничная. Очень оригинальное решение. Используется принцип гармошки и элементы, похожие на половинки ножниц. Подобно пружине конструкция собирается и раскладывается без каких-либо усилий. Могут быть оснащены пневмо-электрическим двигателем, автоматизирующим процесс.


Принцип работы ножничной лестницы с электроприводом
- Стационарная. По сути, это такая же лестница, что устанавливается между этажами. Данный вариант является самым удобным и безопасным, но занимает больше всего места. Плюс, его никак не получится спрятать. Так что подойдет он только для тех случаев, когда у вас достаточно много свободного места.




Ключевые требования к чердачной лестнице
При изготовлении лестниц своими руками в первую очередь необходимо руководствоваться техникой безопасности, а также общепринятым правилами. Во-первых, складная лестница не должна никаким образом препятствовать или закрывать проход. Во-вторых, она должны быть достаточно прочной, чтобы выдержать частые нагрузки. В-третьих, нужно учитывать возраст людей, которые будут подниматься на чердак. 





Как построить лестницу для чердака своими руками
Если выбирать между приобретением готового изделия и строительством лестницы своими руками, то 2-й вариант является наиболее выгодным со всех сторон (кроме затраченного времени). Все, что потребуется: необходимый инструмент, хороший чертеж, план работ и хорошее настроение.

- подбор подходящего места,
- определение с габаритами,
- выбор материала,
- определение с формой конструкции,
- выполнение подготовительных работ,
- и, собственно, строительство.
Выбор места
Первое, с чем нужно определиться – где будет находиться вход в чердачное помещение. Можно, конечно, сделать и на улице, но нужно сразу смириться с холодами, дождем и снегом. С точки зрения комфорта и удобства, лучше размещать люк внутри дома. Лестница не должна мешать тем, кто будет жить в этом помещении. Сразу стоит отбросить варианты установки в комнате и на кухне, потому что это самые посещаемые места в доме. Лестницу обычно размещают в коридоре, холле или прихожей. 



Как выбрать габариты
Если размеры выбраны верные и конструкция собрана хорошо, то она может эксплуатироваться длительное время. В противном случае не исключена возможность получения травм. После каждого замера нужно вносить полученные данные на бумагу, после чего составлять чертеж. От того, насколько подробным и точным он будет, во многом зависит конечный результат. 

Важно!Недопустимы даже мелкие ошибки, потому что они могут привести к ненадежности конструкции в целом. Лучше несколько раз проверить себя и перемерить.
Для того, чтобы обеспечить комфортное передвижение по лестнице, ступеньки должны располагаться параллельно полу. Не нужно делать между ними большое расстояние. В таком случае придется слишком высоко поднимать ноги, что на высоте достаточно опасно. Оптимальным расстоянием считается 650 мм. По таким ступенькам удобно подниматься взрослому человеку, не нужно делать слишком большие или слишком маленькие шаги.
Важно!По правилам пожарной безопасности двери в здании, в том числе и чердачные, должны открываться наружу, чтобы при возникновении пожара ничего не препятствовало эвакуации.
При изготовлении лестниц своими руками нельзя забывать о том, что она не должна находиться под прямым углом перпендикулярно полу. Специалисты рекомендуют угол наклона около 20-25 о .

Выбор материала
Складная лестничная конструкция выполняется из металла или дерева. Если говорить об изготовлении всей конструкции своими руками, то намного проще работать с деревом. Главная сложность в том, что выполнить необходимую обработку металла в домашних условиях довольно сложно. 



Совет!Не нужно торопиться и окрашивать исходный материал. Во-первых, есть вероятность случайно повредить одну из деталей. Во-вторых, когда конструкция будет собрана, покрасить ее гораздо проще.
Какую форму выбрать
Прежде всего, форму лестницы нужно выбирать ту, которая будет соответствовать интерьеру и размерам помещения. Она должны быть:
- компактной и эргономичной;
- удобной и комфортной.
Наиболее популярным среди стационарных является вариант с одномаршевой лестницей. Его без проблем можно сделать своими руками. Обычно он используется, если высота комнаты не превышает 3-х метров. Если больше, то с точки зрения безопасности, лучше выбрать между 2-х и 3-х маршевыми. 





Подготовительные работы и строительство
Перед началом работ, для экономии времени и предотвращения чрезмерного расхода стройматериалов, стоит составить смету и подготовить весь необходимый инструмент. Основное внимание следует уделить основанию конструкции. От его прочности будет зависеть, какую нагрузку сможет выдержать лестница. Вам понадобятся:
- 2 доски толщиной 30 мм и шириной 200 мм.
- Для ступеней подойдет доска той же толщины, но шириной 120 мм.
- По 2 варочные петли на каждую ступеньку.
- Крючок и анкерные болты.
- Рулетка, линейка, карандаш.
- Саморезы по дереву.
- Строительный уровень и угольник.


Установка готовой раскладной лестницы https://www.youtube.com/watch?v=YkCg37RB7vg